Chinese philosophy traditionally seeks the harmonization and convergence of man and nature. This manner of thinking endows transitional spaces in architecture with an empathic sense of the combination of space, time and the presence of man, contributing to an extension of our spatial consciousness. The concept of the Chinese transitional space is twofold – the inwardly enclosed space, such as courtyards and open corridors, and the intangible depth generated by physically “thickened” surfaces, such as spaces across window-walls and folding screens, among other architectural elements. The in-between space thus engenders inhabitable surfaces and depths, and makes the building and site operative for human use.
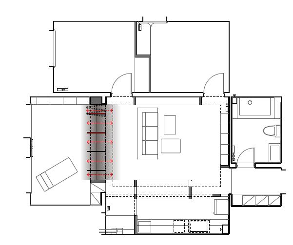
In this design, I attempted to create a “thickened” window-wall in a small-scaled apartment. The resulting depth will be playing a role as a transitional space rather than a tangible area connects spaces of the living room and the bedroom.






